Индонезийский офис Nord Minerals: как мы дистанционно реализовали дизайн интерьера и что из этого получилось

Содержание:
Компания Nord Minerals обратилась к нам с интересной задачей — дистанционно разработать дизайн интерьера офиса, который находится в Индонезии, за 10 тысяч километров от нашей студии.
В интерьере важно было отразить сферу деятельности компании — Nord Minerals занимается поставкой комплексных технологических решений для горнодобывающей, металлургической и химической отраслей. Также предстояло выдержать баланс между скандинавским стилем брендбука и колоритом Индонезии и грамотно использовать всю полезную площадь, чтобы сделать офис функциональным и эргономичным.
В статье рассказали, с каким пространством нам предстояло работать, какие идеи мы предложили и каким в результате получился офис Nord Minerals.
С какими особенностями проекта мы столкнулись
Основная особенность проектирования офиса для Nord Minerals заключалась в том, что он находится в Джакарте — столице и крупнейшем городе Индонезии. Это означало, что нашей команде предстояло погрузиться в иностранные нормы проектирования, дистанционно провести замер помещения, учесть технологические стандарты и вкусовые предпочтения заказчика.
Мы дистанционно разрабатывали дизайн интерьера офиса, а воплощать идеи предстояло местным строителям под нашим авторским надзором. Мы уже не раз работали в таком формате — в нашем портфолио есть дизайн-проекты для клиентов в Шанхае, ОАЭ, Финляндии — поэтому хорошо были знакомы с особенностями данного процесса.
Для офиса компания выбрала пространство размером 284,15 м², в котором планировалось расположить несколько основных зон:
- open space,
- входную,
- принтерную,
- переговорную комнату,
- кабинеты,
- кофе-пойнт с зоной отдыха.
В дизайне интерьера заказчики хотели видеть яркие и при этом естественные цвета, натуральные материалы, много растений и фирменную графику.
Мы оценивали помещение удаленно по фото и видео 360°, уделяя особое внимание деталям, например, примыканиям и узлам. Небольшая особенность, которую важно было учитывать при проектировании офиса, — требование бизнес-центра оставить модульный потолок в текущем виде для доступа к инженерным коммуникациям. Всё, что мы могли изменить на потолке, — добавить декоративное освещение.
Сдержанный колорит и эргономичность: как работали с концепцией и планировкой
Индонезия — страна с богатым культурным наследием, теплым климатом и сильными контрастами. Современные высотные здания сочетаются с тропической природой, насыщенными цветами. Этот колорит хотелось интегрировать в сдержанный скандинавский стиль, присущий офисам компании Nord Minerals, чтобы подчеркнуть ее международную направленность и корпоративную культуру. Мы решили сделать упор на создании теплой и уютной атмосферы, включив в палитру офиса насыщенный оранжевый цвет.
Стилистический коллаж проекта: яркие цвета оттеняются светлыми природными оттенками, благодаря чему пространство выглядит уютно и не перегружено
Чтобы отразить сферу деятельности компании, мы также разработали тематическую графику.
Постеры для офисов компании Nord Minerals
Одним из элементов графики стал принт для стен и стеклянных перегородок офиса: он изображает линии ландшафта Джакарты.
Принт на стене переговорной комнаты
В планировке нашей задачей было учесть иностранные нормы проектирования и сценарии использования пространства, поэтому мы изначально предложили несколько вариантов. Мы остановились на таком варианте зонирования:
Основная идея заключается в том, чтобы рассредоточить кабинеты вокруг open space, а входную зону отделить от рабочей с помощью переговорной комнаты. Такой прием оставляет возможность оперативно взаимодействовать с коллегами, при этом понижая уровень фонового шума и способствуя продуктивной работе.
Для комфорта сотрудников мы позаботились и о правильном свете. По требованию бизнес-центра, мы не меняли функциональное освещение и сфокусировались на декоративном, подобрав несколько напольных и подвесных светильников (линейный и кольцевой).
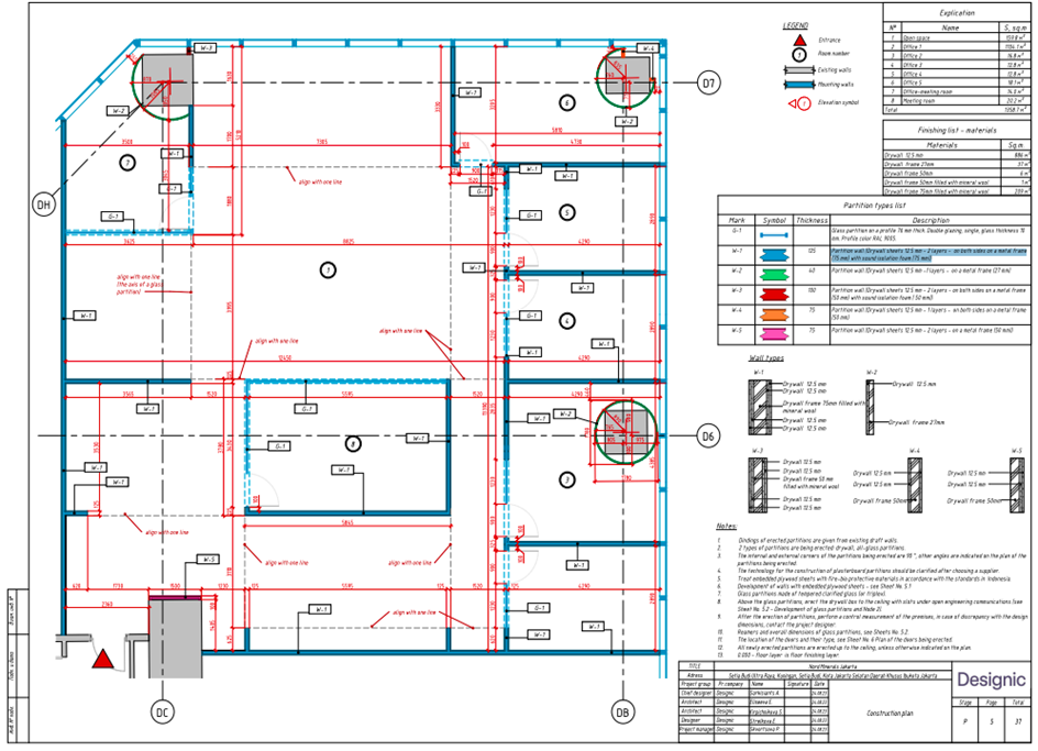
С учетом всех чертежей (монтаж, отделка, электрика, заказные изделия и т. д.), спецификаций (материалы, предметы мебели) и 3D-визуализаций, у нас получился 40-страничный альбом рабочей документации. Это универсальный формат, который служит гайдом для строителей вне зависимости от расположения проекта.
Пример подробного плана монтажа
Подберем подходящее решение для вашего офиса: учтем все законодательные требования, рационально распланируем имеющуюся площадь и проследим за реализацией проекта.
Обсудить проектСтолик с горной рудой и ландшафт Джакарты: каким получился офис
При входе в пространство сотрудники и гости офиса оказываются в небольшой зоне ресепшен. За стойкой ресепшена расположена деревянная стена с небольшими отверстиями, на которой можно размещать надписи и арт-объекты. А перед ней – небольшая зона ожидания с креслами и журнальным столиком.
Визуализация зоны ресепшен
За входной группой расположена зона отдыха, объединенная с кофе-пойнтом. В ней размещен акцентный элемент в форме прозрачного журнального столика с декоративными камнями – отсылка к деятельности компании.
Визуализация кофе-поинта
Из зоны отдыха мы попадаем в коридор, который ведет в кабинеты. Дизайн интерьера каждого кабинета индивидуален, но они связаны между собой общей цветовой гаммой, набором мебели и наличием озеленения. Это было сделано для того, чтобы адаптировать пространство под потребности и задачи конкретных сотрудников.
Визуализация одного из кабинетов офиса Nord Minerals
Также в проекте предусмотрена мини-переговорная, в которой мы предложили расположить стол на шесть человек и TV-зону для демонстрации презентаций. Вместо глухих стен мы использовали стеклянные перегородки – это позволяет сохранить приватность, не сужая пространство дополнительными стенами.
Визуализация open space. Локеры, предназначенные для хранения личных вещей, и кашпо также зонируют пространство
В центральной части пространства находится open space. Это сердце офиса – место, где работает большая часть сотрудников. Здесь мы разместили эргономичные кресла и столы. Рабочие места разделены акустическими перегородками, а к потолку прикреплены подвесные акустические панели – такое решение поглощает звук и способствует комфортному нахождению сотрудников в общем пространстве.
Вместе с open space центральную часть офиса делит большая переговорная комната. Внутри — длинный стол, несколько кресел и TV-зона.
Фотография переговорной со стороны open space
Сложности при реализации дизайн-проекта
За время нашей работы в России и за рубежом мы сотрудничали с разными производителями и сформировали пул проверенных подрядчиков, с которыми можем реализовать практически любые идеи. Многие из них работают на международном рынке, благодаря чему мы не ограничены в локациях.
Однако логистические цепочки выстроены по-разному — например, доставка материалов из Китая в Индонезию занимает больше времени, чем доставка в Россию. Также отличаются и локальные нормы: законодательство, традиции, уровень подготовки специалистов. Всё это сильно влияет на подбор материалов и даже цветов. Поэтому каждый проект начинается с изучения местных норм, а ключевыми навыками дизайнеров и проджект-менеджеров становится межкультурная коммуникация и внимательность.
При разработке проекта в Индонезии, нам нужно было учесть, что не все материалы и мебель одобрены индонезийскими регуляторами в области импорта. Кроме того, краски в Индонезии не замешиваются, а используются в исходном виде, поэтому мы могли выбирать только имеющиеся в наличии цвета. Такие особенности важно понимать уже на этапе концепции, чтобы при реализации не столкнуться с необходимостью подбирать аналоги для всех обозначенных в спецификации позиций.
Заключение
Это не первый наш зарубежный дистанционный опыт проектирования дизайна интерьера, но первый проект, который мы реализовали именно в Индонезии. Работая с международными заказчиками, еще на этапе планирования необходимо учитывать реалии новой страны: изучить законодательство, культурные особенности, инфраструктуру. От этого зависят концепция, процесс работы, сроки и результат.
Рабочая документация – практически универсальный язык, но для точной реализации, как и при работе с любым другим проектом, очень важен авторский надзор. С имеющимися технологиями связи его можно осуществить за тысячи километров без потери в качестве, поддерживая плотный контакт с подрядчиками и консультируя их — это особенно важно, когда применяются новые для конкретного рынка решения.
Разработаем дизайн-проект с учетом ваших пожеланий и особенностей помещения в любом городе мира
Обсудить проект
В статье описан опыт дизайн проекта магазина с учётом культурных особенностей.











