Интерьер небольшого офиса продаж премиум-класса, в котором не тесно: опыт застройщика Legenda Development

Содержание:
Крупный застройщик Legenda Development обратился к нам с задачей обустроить небольшой офис продаж ЖК «Московский, 65» так, чтобы сотрудникам не было в нем тесно, а клиенты сразу понимали премиальность предложения.
В этом кейсе мы рассказали, за счет чего удалось передать атмосферу жилого комплекса, на площади 120 м² разместить 6 функциональных зон и избежать тесноты.
О помещении и идеях заказчика о дизайне нового офиса продаж
Представители Legenda Development обратились к нам в августе 2019 года. Они хотели, чтобы дизайн офиса продаж продолжал идею жилого квартала «Московский, 65» — демонстрировал премиальный уровень и формировал желание приобрести квартиру именно в этом ЖК. Еще одно принципиальное требование — чтобы в нём было комфортно сотрудникам. Изучив вводную информацию, мы взялись за обустройство офиса.
Осмотрев помещение, мы обнаружили три нюанса:
- Здание было модульное, с кривыми стенами и разноплановой отделкой. Работать с таким помещением сложно: больше времени, чем обычно, уходит на подготовку.
- Офис находится напротив оживленного проспекта, в 100 метрах от строящегося ЖК. Важно было предусмотреть эффективную звукоизоляцию, чтобы покупатели ощущали разницу и настраивались на то, что в их будущей квартире будет так же тихо.
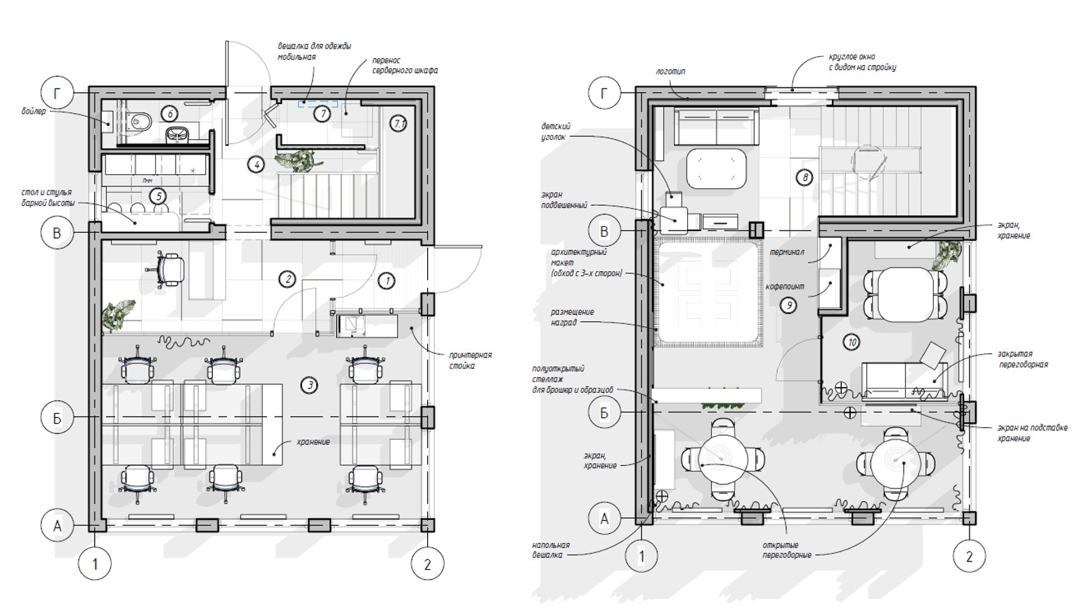
- Помещение небольшое, около 120 м² с учетом лестничного пролета. При этом клиент хотел разместить на каждом из двух этажей по несколько функциональных зон: рабочие места для сотрудников, три переговорных, детскую и лаунж-зоны, кофе-поинт.
Так помещение будущего офиса продаж ЖК премиум-класса выглядело в момент приемки.
Как работали над планировкой и концепцией интерьера офиса продаж
Первое, чем мы занялись, — перепланировка офиса. Клиент получил несколько вариантов расположения функциональных зон.
Так, в одном из вариантов отдел продаж и зону ресепшн разделили акустической шторой. На втором этаже запланировали переговорные в неформальном стиле — диван, мягкие кресла, журнальный столик.
Так выглядел один из альтернативных вариантов планировки офиса.
В результате, взвесив все «за» и «против», остановились на другом варианте, с тремя полноценными мини-переговорными и зоной ожидания.
Важно было грамотно зонировать пространство и не перестараться с деталями. Иначе в и без того небольшом помещении стало бы совсем «мало воздуха».
В итоговой планировке отдел продаж отделили от зоны ресепшн стеклянной перегородкой, чтобы обеспечить максимальную звукоизоляцию. Вместо предполагаемых пяти рабочих мест удалось разместить шесть. Переговорные решили выдержать в более строгом стиле: вместо диванов и журнальных столиков — небольшие столы и кресла.
Отказались от дополнительного санузла на втором этаже, сэкономив тем самым полезное пространство. В результате круглое окно, которое мы планировали разместить на этаже, расположили рядом с зоной ожидания. В альтернативном варианте оно находилось бы просто в конце коридора и смотрелось бы не так эффектно.
С концепцией дизайна офиса продаж определились сразу — у нас было хорошее подспорье в виде брендбука. Он же вдохновил на выбор цветов и материалов. В интерьере офиса продаж решили использовать глубокий синий цвет, а в качестве акцента — латунь. Чтобы не прогадать с оттенком, применили сканер цвета. Он помог подобрать именно тот оттенок синего, который компания использует в интерьерах квартир ЖК «Московский, 65».
Фоном использовали серый цвет.
Изучая брендбук компании, мы увидели, что в проекте много округлых элементов: шрифт, окна в квартирах. Прорабатывая дизайн интерьера офиса продаж, стремились это подчеркнуть.
Чтобы интерьер работал на продажи, важно было в ходе обустройства офиса детально проработать два момента — освещение и акустику. От этого напрямую зависело, будет ли комфортно находиться в помещении и с каким настроем клиенты будут выходить из него после переговоров. Посторонние шумы, мало света — все это могло негативно повлиять на восприятие жилого комплекса.
Большой плюс офиса — панорамные окна, которые визуально расширяют пространство.
К естественному свету в ходе обустройства офиса добавили искусственное освещение так, чтобы грамотно подсветить каждую важную зону.
Решили подсветить стены и каждый стол, проработав освещение так, чтобы в клиентских зонах свет на лицах распределялся равномерно и не было теней.
Согласовав детали, перешли к ремонту и обустройству офиса.
Расскажем, как сделать перепланировку офиса и разместить в нём все важные зоны вне зависимости от площади.
Записаться на консультациюО ремонте и организации первого этажа
Чтобы превратить небольшой офис в комфортное пространство, где не будет тесно, пришлось использовать сложные решения. Например, сделать акустический потолок и обшить звукоизоляцией стены.
Так выглядел план потолков на втором этаже.
Прежде чем начать ремонт, мы все детально обсудили с мастерами. Сначала звукоизоляция на потолке вызывала сомнения: было непонятно, как разместить там все необходимые позиции и при этом сделать его бесшовным. Благодаря профессионализму подрядчиков все удалось реализовать так, как было задумано.
Закончив ремонт, перешли к организации пространства и обустройству офиса.
На первом этаже разместили ресепшн и рабочие места. Так как ресепшн — первое, что видят клиенты, важно было еще с порога подчеркнуть концепцию дизайна офиса продаж и создать вау-эффект. В этой зоне мы использовали фирменные цвета компании — синий и латунь, разбавив их деревом и зеленью. Подчеркнули стойку ресепшн изящными светильниками, которые создают цилиндрическое освещение, и добавили на нее логотип компании.
На пол уложили керамогранит с латунными вставками, чтобы зона ресепшн не только соответствовала брендбуку компании, но и демонстрировала уровень жилого комплекса.
В бэк-офисе расположили рабочие места, проработали функциональный свет. Для пола использовали ковровое покрытие со специальной акустической подложкой.
На стене нарисовали картинку из брендбука, на которой изображен жилой комплекс «Московский, 65».
Даже в компактном санузле использовали фирменные цвета компании.
Здесь тоже придерживались «обтекаемого» формата, поэтому разместили овальное зеркало со встроенным светильником.
Затем перешли к дизайну лестницы, которая ведет на второй этаж офиса продаж. Лестничный пролет выкрасили в белый цвет, выбрали светильники необычной формы, а на ступеньки добавили латунные вставки.
Получилось передать концепцию проекта, не перегрузив интерьер.
Обустройство второго этажа офиса продаж
На втором этаже мы разместили клиентскую зону: meeting-поинты для проведения встреч, закрытую переговорную, зал ожидания и детский уголок.
Сразу с лестницы внимание привлекает нестандартное окно-иллюминатор, из которого можно наблюдать за строительством ЖК. Такое же окно есть в квартирах комплекса.
Эта деталь наводит на мысль, что и жилой комплекс будет нестандартным.
Рядом с окном-иллюминатором расположены лаунж-зона и детский уголок. Клиенты часто приходят с семьей, поэтому важна возможность разместить в одной зоне взрослых и детей.
Эта зона визуально отделена ковровым покрытием синего цвета с золотистым напылением.
Дальше по коридору находится встроенный кофе-поинт с закрытыми и открытыми полками.
Чтобы сделать эту зону более домашней, мы использовали дерево и цветы.
Напротив кофе-поинта разместили макет ЖК «Московский, 65», который клиенты могут рассмотреть, пока ожидают встречи с менеджером.
В этой же зоне, за стеклянной дверью, расположили закрытую переговорную. Внутри много дерева: стол, стулья, панель, комод. Все это хорошо сочетается с синим цветом и перекликается с латунными акцентами.
Деревянная панель и плотные шторы подавляют шумы и обеспечивают тишину в переговорной.
В конце коридора, за широким стеллажом, разместили две зоны для переговоров.
В дизайне офиса продаж мы использовали необычные объекты, которые сразу привлекают внимание, — торшеры, склоненные над столами. Они помогают визуально зонировать пространство.
Разработка дизайн-проекта офиса продаж: итоги
Работая над дизайн-проектом офиса продаж ЖК «Московский, 65», мы смогли на небольшой площади разместить все необходимые функциональные зоны, избежав тесноты. При этом удалось погрузить клиентов в атмосферу жилого комплекса и подчеркнуть премиальность предложения.
Офис получился удобным благодаря нескольким решениям:
- чтобы не перегружать маленькое помещение, мы грамотно распределили акценты и подобрали максимально «невесомые» предметы интерьера;
- чтобы «добавить воздуха», выкрасили стены в белый и позаботились о качественном освещении всех зон;
- чтобы обеспечить тишину, подобрали качественные звукоизоляционные материалы.
Получилось пространство, в котором удобно сотрудникам и по-домашнему уютно клиентам.
В статье показываем, как оформление интерьера магазина помогает создать уютную и функциональную среду.

















