Как избежать критичных ошибок в проектировании общественных пространств: 10 важных планов, которые должны быть в каждом проекте

Содержание:
Обсудив с заказчиком идею будущего офиса, коворкинга, выставочного комплекса или другого общественного помещения и согласовав концепцию, мы приступаем к формированию альбома рабочей документации, который может включать 50, а то и 100 листов чертежей.
В альбом входят обмерный план, план монтажа и демонтажа перегородок, чертежи установки сантехнического оборудования и т. д. Зачем так много и действительно ли все они нужны?
Каждый документ, который содержится в альбоме, помогает спланировать конкретный участок работы. Если исключить какой-то чертеж, это повлечет за собой серьезные ошибки, ведущие к переделкам и дополнительным тратам.
Мы написали статью о том, какие ошибки в проектировании общественных пространств встречаются чаще всего, зачем нужен каждый из 10 основных планов и что будет, если обойтись без него.
Планы, которыми проиллюстрирован материал, взяты из нашего проекта офиса IT-компании NBCom Group, одного из лидеров рынка портативной техники и электроники.
Обмерный план
Перед началом работы над проектом мы изучаем план, который предоставляет собственник или арендодатель. Он позволяет составить общее представление об объекте: понять размеры и площадь каждого помещения. Если этим и ограничиться, есть риск в процессе столкнуться с большими проблемами.
Например, план может оказаться не актуальным: какие-то перегородки давно снесли, что-то достроили. Опираясь на такой чертеж, можно неверно рассчитать количество материалов: купить слишком много или мало. В первом случае ошибка приведет к лишним тратам, во втором всё гораздо сложнее. Материалы могут снять с производства — придется либо подбирать замену, либо возвращаться назад и переделывать часть дизайн-проекта, чтобы выдержать всё в едином стиле. А это — дополнительные время и деньги.
Чтобы исключить подобные ситуации, мы всегда самостоятельно производим замеры, затем сравниваем полученные цифры с планом, который нам дали, и разрабатываем окончательный, правильный обмерный план. Это — базовый чертеж, который влияет на все остальные планы, от него зависит итоговая картинка.
На обмерном плане отмечаем:
- размеры стен;
- высоту потолка, оконных и дверных проемов;
- расположение щитков, шахт, стояков водоснабжения и канализации, пожарных шкафов, радиаторов, источников отопления, ниш или арочных конструкций.
В комментариях прописываем, какие конструкции необходимо будет снести, а какие — сохранить, и указываем перепады поверхностей.
Если видим, что помещение сложное, применяем 3D-сканирование. Это позволяет оцифровать все труднодоступные уголки и поверхности, чтобы получить корректные размеры.
План демонтажа стен и перегородок
Когда обмерный план готов, нужно четко обозначить для строителей, какие конструкции сносить, а какие — оставить. Определить это «на глаз» невозможно — важно понимать, какие стены несущие, где располагается электропроводка. Если начать демонтаж без плана, может обрушиться стена или замкнуть электричество, из-за чего пострадает не только отдельное помещение, но и здание в целом.
По закону для того, чтобы изменить несущие опоры и инженерные коммуникации, нужно получить разрешение, для чего потребуется подробный план. За несанкционированную перепланировку могут оштрафовать на сумму до 50 000 рублей.
Чтобы строители точно знали, с чем и как предстоит работать, а также могли составить смету, нужен подробный план демонтажа стен и перегородок. В нём описываются:
- расположение перегородок, дверных проемов и несущих стен;
- элементы инженерных сетей;
- конструкции, которые нужно снести.
В своих чертежах мы дополнительно прописываем необходимость демонтажа подоконников, потолков, радиаторов. Без прямых указаний строители могут на свое усмотрение оставить или снести часть конструкции. Если это выяснится на этапе отделки, придется демонтировать или наращивать недостающий участок, из-за чего пострадает свежее покрытие.
План монтажа
Он составляется сразу после разработки плана демонтажа стен и перегородок и включает:
- все возводимые конструкции — стены, перегородки, арки;
- расположение и точные размеры возводимых стен;
- материалы, из которых будут сделаны перегородки. Это необходимо для того, чтобы строители не поменяли их местами. Например, не поставили во влажные помещения перегородки из простого гипсокартона вместо влагостойких.
Для удобства на плане указываем любые несостыковки, отмечаем, в каких местах будут встроенные ниши, какие перегородки необходимо усилить и чем, а также показываем пироги стен и обязательно прописываем, из чего они сделаны. Напоминаем про закладные, контрольные обмеры стен, чтобы убедиться, что всё сходится с проектными размерами. Такие подробные комментарии помогают строителям лучше спланировать и выполнить свою работу. А мы можем быть уверены, что результат будет таким, как задумано.
Вот какой план получают наши заказчики.
При составлении плана монтажа важно соблюсти законодательные нормы. Используются два документа: СНиП по проектированию общественных зданий и сооружений и СНиП по противопожарным нормам. В соответствии с ними перегородки, перекрытия, конструкции для серверной или архивной зон важно выполнять только из негорючих материалов. Если этого не учесть, можно получить штраф. На плане также нужно обозначить размещение новых пожарных кранов.
Планируете переезд в новый офис или открытие другого общественного пространства? Продумаем дизайн-проект с учетом пожеланий, детально проработаем все необходимые чертежи и создадим уютное пространство, в которое влюбятся ваши сотрудники, клиенты и партнеры!
Обсудить дизайн-проект!
План маркировки дверных проемов
Еще один важный документ — план дверных проемов. Без него непонятно, какие двери необходимо разместить в каждом помещении. При его составлении важно:
- Учесть законодательные требования. Например, эвакуационные проходы должны быть не менее 1,2 метра в ширину, их нельзя загромождать чем бы то ни было. Согласно п.4.3.3. СП 1.13130.2020 «Системы противопожарной защиты. Эвакуационные пути и выходы» при одностороннем открывании дверей ширина прохода должна быть не менее 1,65 метра (при ширине двери 0,9 метра). Ширина проема, ведущего из туалета в коридор, должна быть 0,8 метра, а пороги и перепады высот — не более 0,025 м.
- Правильно расположить двери. Двери, которые находятся на путях эвакуации, должны открываться в сторону выхода из здания, чтобы в экстренной ситуации не создавать дополнительных препятствий.
Если не учесть эти особенности, можно получить серьезный штраф. Также придется внести изменения в документацию и заново делать ремонт.
Не допустить ошибок поможет план маркировки дверных проемов. В нём фиксируются расположение окон, дверей и подоконников, их высота и ширина, материалы, из которых они будут изготовлены, а также то, как они должны открываться.
В комментариях к плану мы обязательно указываем, какие конструкции необходимо установить под пол, а также напоминаем о необходимости контрольных замеров дверных проемов.
План размещения сантехнического оборудования
Он помогает грамотно установить сантехническое оборудование, а также подвести коммуникации с учетом санитарных норм.
Неважно, идет речь об инсталляции унитаза или полной замене скрытой канализации в старом здании. В любом случае придется штробить стены и пол, рассчитывать расстояния, «зашивать» стены.
Если работать без четкого плана, могут обнаружиться нестыковки. Например, выяснится, что трубу расположили на пару сантиметров выше, чем нужно, из-за чего установить унитаз не получается. Чтобы исправить положение, придется заново штробить стены, пол, искать подходящую высоту. А это — дополнительные траты.
Поэтому важно составить детальный план. В свои чертежи мы включаем:
- перечень оборудования, которое будет подключено к сетям;
- его размеры и способы установки;
- модели сантехники, чтобы строители сразу понимали размеры и типы соединений.
После утверждения перечня сантехоборудования обязательно проводим сверку. Следим за тем, чтобы привязочные размеры подключения систем водоснабжения и канализации совпадали с техническими требованиями в паспорте изделия. Это позволяет убедиться в том, что нет расхождений.
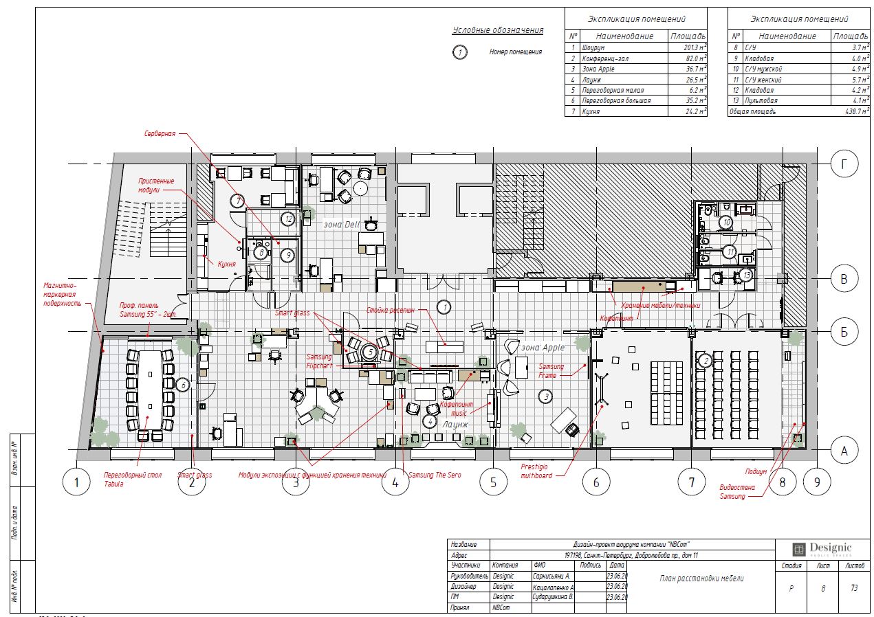
План расстановки и маркировки мебели
Расстановка мебели «на глаз» чревата ошибками. Например, шкафы, расположенные вдоль стен, могут закрыть доступ к розеткам или радиаторам. Или столы окажутся неподходящего размера и частично загородят проход. Придется менять план расстановки мебели. Оставить как есть не получится — за любое нарушение можно получить штраф. Рано или поздно придется переделывать интерьер в соответствии с нормами.
Чтобы избежать подобных ситуаций, важно правильно проработать не только обмерный план, план демонтажа стен и перегородок, но и план расстановки мебели.
В свои чертежи мы включаем:
- расположение электрических розеток, выключателей, потолочных, напольных и настенных светильников;
- размеры всех объектов с привязками к стенам, дверям и окнам.
Дополнительно прикладываем визуализации с полным перечнем мебели и оборудования, оставляем комментарии для подрядчиков по поводу заказных изделий (диванов, встраиваемых в нишу, ламелей, зонирующих пространство и т. д.).
Чтобы избежать отклонений, работаем в программе Revit, которая позволяет увидеть помещение целиком и оперативно отследить любые погрешности.
План отделки помещений
Он содержит информацию об оформлении стен, от того, какой нужен цвет, до того, какие материалы предстоит закупить для каждого помещения.
Если работать без плана отделки, подрядчики могут забыть, в какой части офиса какие чистовые материалы располагать, закупят не то, что нужно, и не в том количестве. В итоге может получиться офис в духе «ожидание-реальность». А это — очередные переделки.
Чтобы избежать ошибок, важно не просто составить план отделки, но и прописать в нём обязательные пункты, без которых лучше не начинать работу. В своих чертежах мы указываем:
- какого цвета должна быть каждая стена;
- какое покрытие где использовано — обои, покраска, декоративная штукатурка;
- на какие поверхности нужно нанести нестандартное покрытие (например, 3D-панели) и какой толщины оно должно быть;
- в каких местах необходима предварительная отделка.
Опираясь на этот план, строители рассчитывают количество материалов.
Также мы оставляем комментарии для подрядчиков. Отражаем на плане спецификацию материалов с учетом площади: прописываем артикулы, а на развертках — информацию о том, что и как нужно делать. Например, если планируется отделка деревянными панелями, обязательно на развертках указываем дополнения по монтажу. Такой подход позволяет избежать любых неточностей.
План напольного покрытия
С помощью этого чертежа можно понять, где и какое покрытие нужно расположить.
Если работать «на глаз», есть риск ошибиться в размерах или направлении укладки. Например, в соответствии с техническим заданием плитку с орнаментом нужно было красиво выложить посреди офиса. А в итоге вышло так, что часть рисунка не совпадает, а часть спрятали под диван. Чтобы исправить ситуацию, придется снимать покрытие и укладывать его заново.
Еще одна распространенная ошибка — неверный расчет толщины «пирогов», из-за которого появляются перепады высоты. В процессе эксплуатации часть покрытия, которая сильно выступает, может деформироваться.
План напольного покрытия позволяет избежать подобных ситуаций. На нём обычно указываются:
- покрытие, которое необходимо закупить;
- его толщина;
- раскладка ковровой плитки, паркетной доски и ламината;
- маркировка плинтусов.
Когда план готов, мы прописываем в комментариях все ключевые моменты. Например, даем рекомендации по укладке ковровой плитки — уточняем, что перед укладкой материалу нужно дать «отлежаться» в течение суток при температуре не ниже 16°C.
План потолков
Этот чертеж помогает правильно оформить потолки. Если работать без него, может получиться так, что подрядчики завершат отделку потолка, но не учтут расстояния между светильниками. Придется всё переделывать.
Если опираться на детальный план потолков, таких ошибок можно избежать. На нём важно отметить:
- уровни, потолочные плинтусы;
- опуски коробов, где нужно спрятать вентиляцию или встроенные шкафы;
- материал отделки потолков.
Если работаем со сложным или нестандартным потолком (например, реечным), дополнительно разрабатываем план, на котором показываем порядок монтажа.
Также мы учитываем расположение коммуникаций. Чтобы не было расхождений, после того, как готов план потолков, запрашиваем у инженеров сводный план по потолочной коммуникации и накладываем чертежи друг на друга.
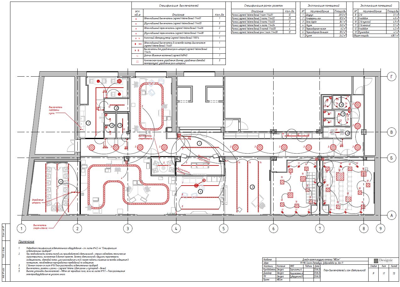
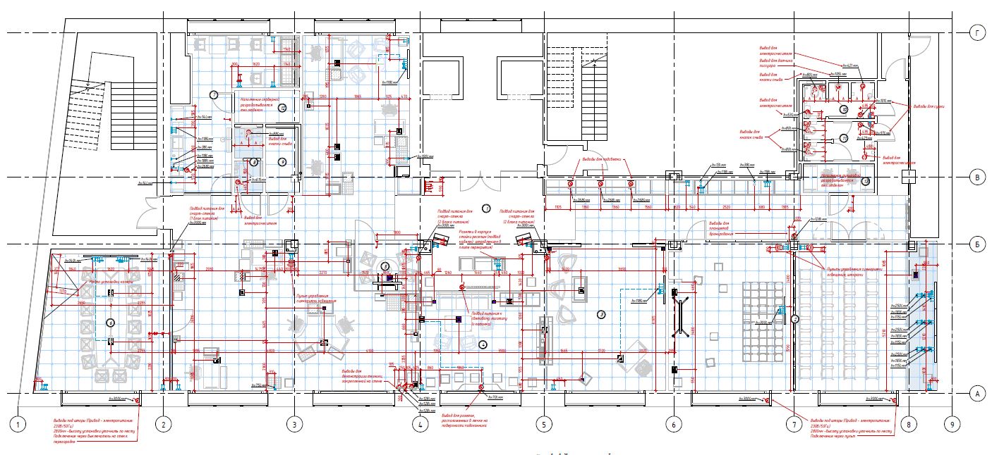
Планы электрики (освещения, выключателей и розеток)
Мы обычно разрабатываем три плана:
- расстановки осветительных приборов;
- расположения выключателей и зон светильников;
- размещения электрооборудования (с типами розеток).
Каждый чертеж помогает понять, как правильно разместить розетки и электрические выводы, осветительные приборы и разводки освещения на выключатели.
Если не продумать электрику, в офисе может не хватить розеток или будет недостаточное освещение. Работать в таком помещении неудобно: по нему будут растянуты удлинители, придется докупать лампы и думать, как их расположить. Кроме того, можно нарваться на штраф за нарушение норм охраны труда. В итоге придется тратить время и деньги на переделки: «расшивать» стены, добавлять розетки или осветительные приборы и снова «зашивать».
Планы электрики спасают от таких ситуаций. Давайте разберем, что должно быть в каждом из них.
- План расстановки осветительных приборов. На нём мы отмечаем артикулы и спецификацию каждого прибора с указанием мощности светильников, также прописываем высоту размещения.
- План выключателей и зон светильников. Здесь указываем сценарии освещения: например, возможность включения одного светильника из разных точек помещения. Также показываем, какие светильники и как будут размещены в каждой зоне.
- План размещения электрооборудования с типами розеток. На этом чертеже указываем всё необходимое электрооборудование: розетки для подключения техники, HDMI и интернет-розетки, USB, кабель-колонны, лючки для питания рабочих мест. Дополнительно прописываем, как именно их нужно расположить. Например: от телевизора до лючка нужно провести HDMI-кабель, чтобы удобно было подключаться.
Подведем итоги
Заказывая дизайн-проект, убедитесь, что вам предоставят полный пакет рабочей документации:
- Обмерный план. Без него невозможно понять, с помещением каких размеров предстоит работать, какие особенности у него есть.
- Планы демонтажа и монтажа. Они помогают определиться с тем, какие конструкции необходимо возвести в новом офисе, какие снести, что сохранить.
- План маркировки дверных проемов. Без него непонятно, какого вида и размеров должны быть проемы на входе в помещение, в кабинеты, на лестничную площадку.
- План размещения сантехнического оборудования. Позволяет понять расположение коммуникаций.
- Планы потолков, напольного покрытия и отделки. С их помощью можно понять, как должны выглядеть потолок, пол, какие отделочные материалы закупить, как правильно с этим всем работать. Они позволяют добиться совпадения результата с задумкой.
- План расстановки и маркировки мебели. Этот документ поможет понять, в каком количестве закупать мебель и как ее расставить.
- Планы электрики (освещения, выключателей и розеток). Чертежи, которые позволяют понять, как правильно разместить розетки и электрические выводы в офисе, осветительные приборы и разводки освещения на выключатели.
Каждый план важен, т. к. ошибка на любом этапе повлечет за собой переделки. Например, если на старте некорректно обмерили офис, во время отделки строителям не хватит материалов или, наоборот, останутся излишки.
Мы используем опыт зарубежного и удалённого проектирования для минимизации рисков. Подробнее — в статье про зарубежный опыт проектирования.
В другой статье мы делимся опытом создания проектов общественных зон и рассказываем, как предусмотреть ключевые нюансы ещё на старте.
















