Дизайн-проект коворкинга Kazanskaya PAGE: как мы обыграли расположение здания и справились с недостатком естественного света

Содержание:
Заказчики часто обращаются к нам повторно, когда открывают офисы в России и за границей, строят новые апарт-отели, жилые комплексы и другие общественные пространства. Проект коворкинга PAGE Казанская интересен тем, что и с владельцем франшизы, ГК «БестЪ», и с ее покупателем, ГК Docklands Development, мы уже не раз работали.
Новое коворкинг-пространство, которое рождается в сердце Санкт-Петербурга прямо сейчас, во многом стало для нас профессиональным вызовом. Нужно было создать технологичный коворкинг в старинном здании в историческом районе, компенсировать недостаток естественного света и грамотно обыграть локацию. В новом кейсе рассказываем, как команда справилась с поставленными задачами, и делимся визуализациями из дизайн-проекта.
Кто заказчик дизайн-проекта коворкинга PAGE Казанская и какую задачу он перед нами поставил
PAGE — сеть коворкингов в Санкт-Петербурге, у истоков которой стояла ГК «БестЪ». Первые два коворкинга, BENUA и AVENUE, создали сами, потом начали продавать франшизу. KAZANSKAYA — один из коворкингов, открытых другим владельцем под брендом PAGE.
Мы сопровождаем сеть PAGE с первых шагов:
- разработали дизайн-проект флагманского коворкинга, расположенного в историческом здании на территории ресторана «Ферма Бенуа»;
- спроектировали второе коворкинг-пространство —AVENUE;
- создали брендбук, который является основой для проекта каждого нового заведения сети.
Покупатель франшизы тоже уже работал с нашей студией. По заказу ГК Docklands Development мы разработали проекты:
- офиса продаж апарт-отеля Docklands;
- апартаментов в скандинавском стиле;
- апартаментов в стиле английский лофт;
- апартаментов SmArt, в которых объединились любовь к современному искусству и технологии умного дома;
- кафе;
- благоустройства территории лофт-квартала Docklands.
Поскольку оба участника сделки имели положительный опыт сотрудничества с Designic, оформление нового коворкинг-пространства в соответствии с брендбуком доверили нам.
Работать предстояло с помещением коворкинга, расположенным в историческом здании по адресу ул. Казанская, 3а. До недавнего времени там функционировали фитнес-клуб и небольшой коворкинг, принадлежащие инвестору. Резидентам так полюбились рабочие места в галерее с видом на Казанский собор, что их стало не хватать всем желающим. Решено было отдать часть площадей спортивного клуба под новый коворкинг PAGE Казанская, который будет в 10 раз вместительнее своего предшественника.
Перед нами поставили задачу сделать коворкинг:
- технологичным — с «умными» экранами, электронными флипчартами, смарт-стеклом, которое меняет прозрачность и т. д. Благодаря уникальной локации, новое коворкинг-пространство и так будет вне конкуренции, но собственник хотел усилить вау-эффект за счет таких «фишек»;
- светлым — помещения довольно темные, нужно было компенсировать эту особенность за счет грамотного дизайна;
- соответствующим брендбуку PAGE.
Отдельно оговорили перечень того, что нужно было оставить нетронутым. Заказчик хотел сохранить и вписать в новый дизайн потолки, покрытие стен и пола — это всегда сложнее, чем создавать дизайн-проект с нуля без ограничений.
Из чего мы исходили при разработке концепции помещения коворкинга
Главным источником вдохновения для нас стала локация. Из окон коворкинга PAGE Казанская видны Казанский собор и исторические здания с фасадами холодных оттенков: зеленого, кирпичного и т. п. Хотелось гармонично вписать коворкинг в окружение, сделать его элегантным, деликатным.
Помещение нового коворкинг-пространства имеет ряд особенностей, с которыми пришлось считаться:
- большую площадь;
- мало естественного света;
- запрет на изменение потолков, покрытий стен и пола.
Мы взяли за основу брендбук PAGE, учли все перечисленные нюансы и разработали концепцию нового коворкинга — одновременно похожего на остальные заведения сети и самобытного. Чтобы получить желаемый результат, немного адаптировали цвета, предусмотренные брендбуком, — например, выбрали более холодный оттенок красного вместо коричнево-рыжего.
Какие функциональные зоны будут в коворкинге PAGE Казанская
Изначально планировалось, что коворкинг займет три этажа: 2, 3 и 4. В конечном итоге заказчик решил оставить четвертый этаж фитнес-клубу.
В нашем распоряжении было пространство площадью 2 559 м². В проекте 1 185 м² отвели под рабочие пространства, 1 374 м² занимают места общего пользования, включая переговорные.
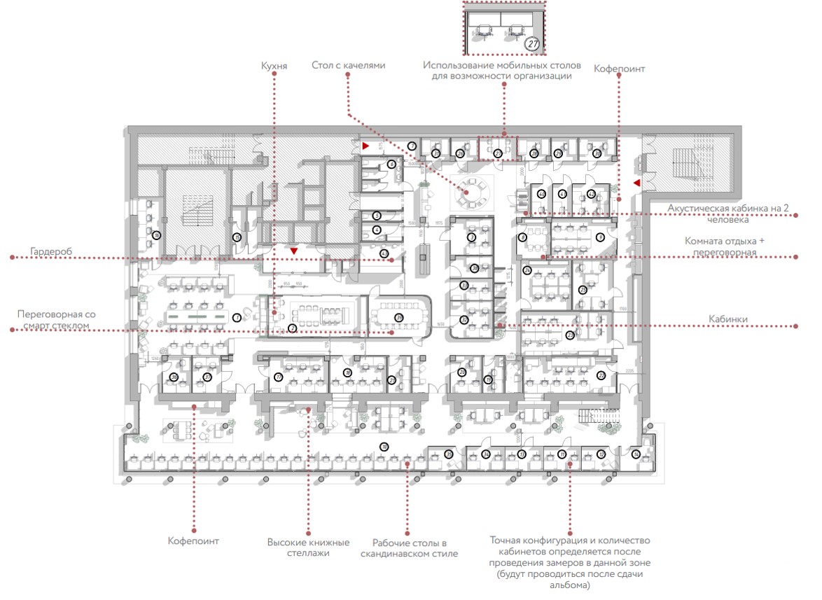
На втором этаже мы предложили разместить:
- рабочие зоны разного формата — open space, индивидуальные кабинки, кабинеты;
- комнату отдыха;
- кухню;
- кофепоинты;
- переговорные;
- акустическую кабинку;
- гардероб.
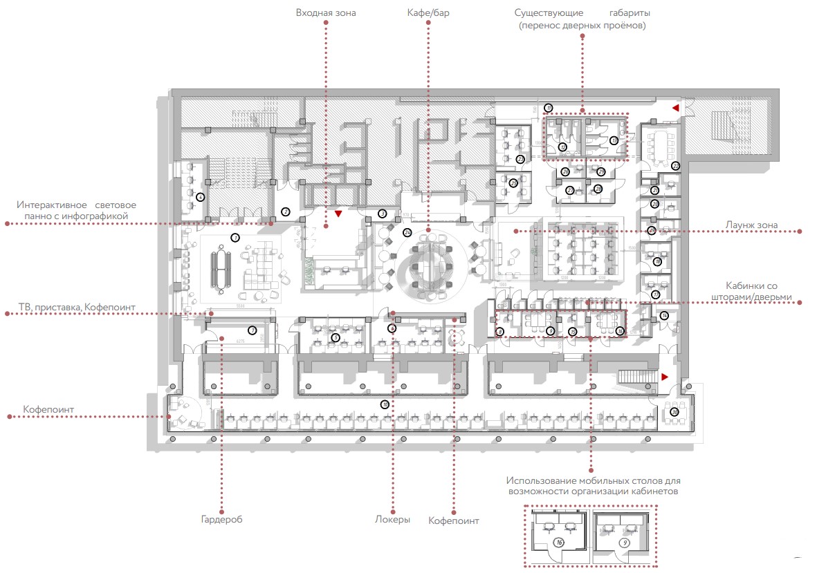
Проект третьего этажа коворкинг-пространства включает:
- входную зону;
- индивидуальные рабочие кабинки;
- кофепоинты;
- лаунж-зону;
- локеры для вещей резидентов;
- гардероб.
В проекте много интересных зонирующих конструкций: стеллажей, различных перегородок из акустических материалов и т. п. Они делят помещение на функциональные зоны и помогают в формировании комфортной рабочей атмосферы.
Для зонирования мы предложили использовать в том числе живые растения, которые создают уют и поглощают звук, препятствуя его распространению по открытым пространствам.
Рассказываем о том, какими команда студии видит функциональные зоны коворкинга PAGE Казанская.
Зона ресепшн
Просторная входная зона отделена от соседних лаунж-зоны и рабочей зоны с помощью неглухого стеллажа и озеленения.
Доминанта этой зоны — светильник над стойкой ресепшн, который присутствует в проекте в двух вариантах: первый стилизован под скомканные листы бумаги, второй повторяет очертания купола Казанского собора.
Рабочие места
В коворкинге PAGE Казанская резиденты смогут выбирать рабочие места на свой вкус. Здесь будут:
- Индивидуальные рабочие кабинки. Они подходят для сосредоточенной уединенной работы и очень востребованы в коворкинг-пространствах. Кабинки представляют собой диванчики с высокими спинками и бортиками из акустического материала, которые огораживают резидентов друг от друга и поглощают звук.
- Закрытые акустические кабины. Они предназначены для проведения вебинаров, онлайн-переговоров и т. п. За пределами кабины никто не услышит, о чём беседуют внутри.
- Рабочие места формата open space. Их несколько типов: с диванами и креслами, высокими столешницами и стандартными офисными столами — каждый может выбрать с учетом своих потребностей. Пожалуй, самая сложная рабочая зона в проекте — галерея с видом на Казанский собор. Это высокое пространство, там много камня и стекла, которые нужно было оставить, из-за чего «гуляет» звук и немного неуютно. Мы предложили установить в нишах стеллажи, которые помогут сделать помещение более обжитым и будут препятствовать возникновению шума. На визуализации видно, что они не доходят до потолка — выше их сделать не получится из-за облицовки из натурального камня, в которую нельзя крепиться.
- Кабинеты. Для тех, кто работает с конфиденциальными документами или хочет иметь возможность пообщаться с клиентами без посторонних глаз, на обоих этажах коворкинг-пространства будут оборудованы кабинеты.
Кроме того, резиденты могут расположиться в лаунж-зоне, где предусмотрено несколько типов посадочных групп: с диванами, стульями, пуфами, скамейками.
Лаунж-зона
Эта зона — сердце коворкинга, центр жизни в нём. Она предназначена для нетворкинга: здесь специалисты из разных компаний, фрилансеры и предприниматели могут знакомиться друг с другом, обмениваться идеями и формировать сообщества.
Мы предложили установить в лаунже большой стол, который станет одновременно частью кофепоинта и центром зоны коллаборации. Вдоль панорамных окон разместили дополнительные посадочные места — столешница и диваны будут встроены в оконные проемы. Межоконные пространства украшают изображения загнутых страниц — это отсылка к названию сети коворкинг-пространств PAGE.
Частью кофепоинта также будет большой экран, предназначенный для трансляции промо-роликов, видео о жизни коворкинга и объявлений от резидентов (о вакансиях в команде, поиске партнеров и т. д.).
В верхней части кофепоинта на стену нанесен линейный паттерн, символизирующий стоящие на полке книги. Этот элемент, как и страницы между окнами, разработан под новую локацию — в других коворкингах сети аналогов нет.
Резиденты могут устраивать в лаунж-зоне пятничные вечеринки, играть в Xbox, смотреть кино и т. п. В потолок встроена акустическая система, обеспечивающая качественный звук.
Переговорные
На втором этаже мы спроектировали классическую переговорную, отделенную от остальных помещений перегородкой из смарт-стекла: когда внутри пусто, оно прозрачное, а когда проходит встреча — становится матовым. На стену, где расположен экран, нанесена «линия отрыва» — еще один графический элемент, отсылающий к названию сети коворкингов PAGE.
В проекте есть также неформальная открытая переговорная, которая может использоваться для работы или отдыха. Это стол с качелями — необычное дизайнерское решение, которое отличало бы коворкинг от остальных и способствовало формированию вау-эффекта. Заказчик еще не принял окончательное решение — возможно, элемент не будет реализован по внутренним причинам.
Кафе-бар
Для этой зоны наша команда придумала интересный светильник, который можно рассматривать как арт-объект. Он состоит из фетровых страниц, поддерживающих ассоциацию с названием сети PAGE. Материал выбран неслучайно — фетр поглощает звук, препятствуя возникновению фонового шума.
Светильник обеспечивает декоративное освещение и привлекает внимание, способствуя формированию вау-эффекта от коворкинга в целом.
Кухня
В проекте общей кухни присутствует такая же люстра, как в первых коворкингах сети. Это работа известного предметного дизайнера Ingo Maurer, выполненная из японской бумаги, нержавеющей стали и термостойкого сатинового стекла. В комплект входят 80 чистых листов, на которых можно оставлять послания другим резидентам.
Еще один интересный элемент, привлекающий внимание, — неоновая вывеска в виде руки, держащей чашку.
Зоны для хранения
Проектом предусмотрены локеры, в которых можно будет оставлять личные вещи — стандартное решение для коворкингов сети PAGE. Их изготовят на заказ, ячейки будут разного размера, чтобы удовлетворить потребности всех резидентов.
Разработаем для вас дизайн-проект коворкинга, офиса, апартаментов или другого общественного пространства и проследим за его реализацией. Специализируемся на таких объектах с 2016 года: поможем не потратить лишнего и создать действительно прибыльный объект!
Обсудить идеи!
Какие материалы и оборудование использованы в проекте коворкинг-пространства KAZANSKAYA PAGE
Потолки
В соответствии с пожеланиями заказчика мы оставили исходные потолки Грильято — металлические, под алюминий.
Чтобы у резидентов не возникало ненужных ассоциаций с торговым центром, предложили покрасить потолки в разные цвета — так они выглядят непривычно и свежо.
Напольные покрытия
В помещении практически везде было покрытие из керамогранита — мы монтировали новые поверх существующего, на фиксатор. Выбрали ковровую плитку и ПВХ плитку за их акустические и эстетические свойства, простоту монтажа и износоустойчивость.
Покрытие стен
Существующие стены в основном были окрашены — мы решили перекрасить их в белый. Это позволит резидентам, которые арендуют отдельные офисы и кабинеты, дополнительно оформить пространство в соответствии с брендбуками.
Кое-где стены были отделаны декоративными панелями, которые мы оставили и окрасили в цвета проекта. Отделку натуральным камнем в зоне галереи также сохранили по просьбе заказчика.
Осветительные приборы
Поскольку пространство (за исключением галереи) темное, не хватает естественного света, в проекте использовали множество различных светильников. Некоторые из них являются арт-объектами — помимо своей прямой функции работают также на формирование вау-эффекта.
Кроме светильников в проекте есть неоновые изображения в фирменном стиле PAGE: девушки с ноутбуками, кружки кофе и т. д.
Как продвигается реализация проекта коворкинга PAGE Казанская
Помимо разработки дизайн-проекта покупатель франшизы заказал у нас комплектацию и авторский надзор. Важно было, чтобы специалисты студии контролировали каждый этап реализации и могли оперативно внести изменения в проект, поскольку помещение специфическое.
От некоторых предложенных нами решений заказчик по внутренним причинам отказался, кое-что еще под вопросом, но в целом дизайн-проект был согласован. Сейчас он находится на стадии реализации, и уже в начале 2023 года новый коворкинг откроет двери для первых резидентов.
Как и в остальных своих проектах, мы опирались на потребности будущих резидентов. Думали о том, чтобы человеку было комфортно, светло, удобно и не шумно вне зависимости от того, пришел он на день или станет постоянным клиентом. Как только коворкинг PAGE Казанская будет готов, поделимся фото интерьеров в своем портфолио.




















